八仙桌有標準尺寸嗎?八仙桌尺寸一般是多少?下面嵐禾工裝設計為大家介紹,八仙桌標準尺寸是多少?
問
八仙桌標準尺寸是多少?
答
1:八仙桌的桌面邊長一般要求在0.9米以上,并沒有真正的固定尺寸,覺得適用就可以了;
2:常見的八仙桌尺寸為一平方米,也可以根據房間的面積,和布局適當增加或減少,只要邊長不低于0.9米就好。
3:家用八仙桌尺寸,在100*100*88cm左右,圍坐八人毫不擁擠。
分析
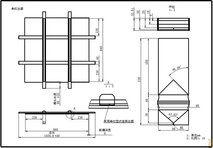
八仙桌尺寸圖紙
圖一

圖二

圖三

圖四

圖五

選材
1:選材最好用硬質木料;
2:材料料加工很重要,毛坯料用刨床刨平后,一定要用手工細長刨精加工,做到表面平直,端面直角;
3:按圖面尺寸劃線、打眼、出隼、扳尖、平肩,所有尺寸誤差均不要超過正負0.2mm(呵呵,近乎苛刻)。
步驟裝配:
第一步:組裝左右鉤子;
第二步:組裝中勾和中柱;
第三步:用橫串連接中柱和左右鉤子組合,重復4次組裝好4面;
第四步:將組裝好鉤子組合裝入桌腿;
第五步:套入座子模頭、插入插板(束腰);
此時工程已完成一半,須測量桌腿間距尺寸是否符合要求,同時測量對角,確保整個座子4面尺寸統一,端面直角90°;
第六步:面板按尺寸要求4邊做好板頭隼;
第七步:面板橫向按尺寸開2條倒順燕尾槽,然后插入串杠;
第八步:將帶隼臺面模頭拍入串杠;
第九步:插入托杠、套入帶眼臺面模頭;
第十步:檢查臺面下12個榫眼與座子榫頭,確保完全吻合;
第十一步:臺面與座子組合。
注:
以上步驟分2個部分,哪個先做都可以,關鍵是要每個連接部件都必須嚴絲合縫!
溫馨提示
在文章的最后為大家總結,八仙桌的桌面邊長一般要求在0.9米以上,并沒有真正的固定尺寸,覺得適用就可以了,家用八仙桌尺寸,在100*100*88cm左右,圍坐八人毫不擁擠。